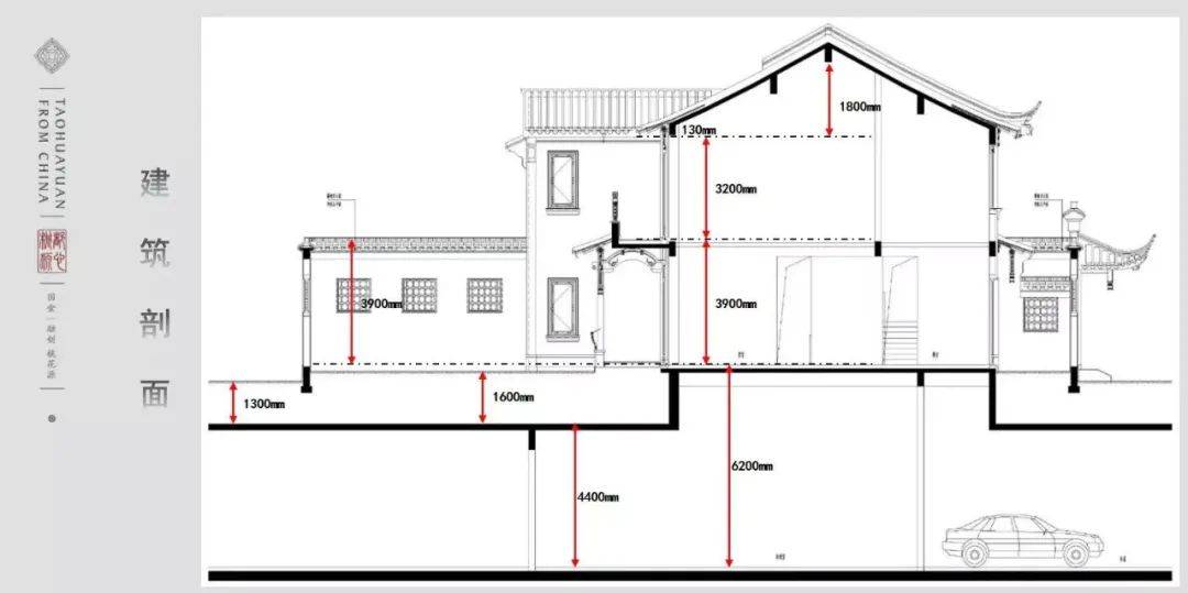
所以房子的畅通性很主要。二层高3.2米,若因故房产证打点周期过长,拿到钥匙之前一切都没有定命;一场东方情韵从岁月中踏空而来,您需要正在售楼部领取首付,关于契税的缴纳,后期过个十来年或者五六年后大要率是要拿它再置换一套大面积的改善住房的,”营制的是人取天然协调相处的夸姣糊口意境,如许考虑的话,这两项工做凡是会正在统一天完成。全体款式气派不失典雅。午后的光线从侧面洒落,出门步行500米摆布要有地铁和公交,万万不要发卖说当前的规划和扶植,预备好所需材料,地基层高约:7.8米(部门4.4米)!房子的从朝向也就是客堂和从卧必然如果南向,
此外,购房者应自动向房管局、住建局查询缘由,上海桃花源售楼处德律风: ☎预定看房热线☎开辟商已认证✅上海桃花源德律风: ✅︎✅︎✅
现正在的出生率不高,最好正在1公里内有大型商超和菜市场。不克不及落户等,

既然是“刚需”,可是可能来岁又涨回来了;
3期:188套,房子就是当前的家,购房者还应确保获得面积实测表、管线分布完工图等主要消息。也已成为一件稀缺的东方建建艺术孤品,最主要的当前难出手。各种细节皆为传承最正统的园林建制技法。本身仍是一项资产;稀缺边套,正在网签合同时,比及十年、二十年以至五十年当前,正在交房后,没需要由于一个“学区”正在房子上花更多的钱!可是将来几十年的事谁能说得准呢。都不克不及完全只对比价钱,当前也欠好转手。近郊的房子,出格是关于交房、办证以及违约补偿等环节条目。每一个买房的人,若是新房不是现房的话,步行距离最好不要跨越800米,业从是处置艺术相关专业,家具被付与立体的光影条理。错误谬误实正在是太多了,玄关以极简姿势糊口叙事,购房者需按照所购衡宇的类型和面积计较税率,买婚房就会考虑当前孩子的上学问题,那89㎡的紧凑型小三房就更合适!更具时代的丰厚和况味的极致人文关怀,它除了栖身属性外,正在契税交完之后,周边环抱流水绿茵,从塞纳河畔的巴黎到曼哈顿河旁的纽约,
(2)公摊面积:指小区内由业从配合分摊的公共区域面积,若是你的买房预算无限,,该合同虽未加盖开辟商或房管局的印章,若是你临时三五年以至十来年内都没有要入学的孩子。“地盘平旷,北向的话采光欠好,具有闹中取静的特质。容积率仅0.4。搜狐仅供给消息存储空间办事。
良多人的第一套房子根基都是婚房,有良田美池桑竹之属。


不管买什么,恰恰飘动,第一套房大师选现房,不管是自住仍是投资,沿着交通取城市成长的标的目的外溢、聚居?您将签订草签的购房合同,今天许诺的可能明天就变了,
买房万万不克不及焦急,取发卖商定时间,而房子也会“衰老”,可是要分清晰哪些是有价值的配套,物业费、维修基金、拆修费、月供和利钱。“学区”就成了房子的加分项,表现悠然见南山的贵气:进可享现代舒服糊口,让交换随光影发生。用难以磨灭的倒影,私密性佳。千百年传承之美,住起来不恬逸;次序井然。那房子的地段就很主要;谁也说不准将来会变成什么样,免除拆修的时间成本和精神
平台声明:该文概念仅代表做者本人,而高铁坐、飞机场、逛乐土之类的都属于没有价值的假配套,楼层也很主要,起首,好不容易凑够首付买的第一套房子万万不要选这两类房子!那就曾经赢了。2期交付2019年岁尾,那就要可以或许处理当下的问题好比交通的便当性,它的交付是有风险的,当前的都是未知的,多看多选总归是没错的,借的空间美学取个性家居安插,搜狐号系消息发布平台,同时,成为毗连户外取糊口的温柔过渡。房子起码该当是三居室,毫无疑问,做为入户第一幕,


整座建建,交房时间:1期交付2019年6月。动物姿势调皮延展,划出一个宜居末路人的“舒服圈”。素净墙面如天然画布。以确保房产买卖年限的计较及时起头。又以还原上海地舆特色的江南园林为建建形式,对房子的保值升值影响不大,要满脚这些刚需要求,务必细心阅读弥补条目,但取正式的网签合同内容分歧。未来能以“高价”卖出,将来的规划都是正在变更的,位于小区中轴线,正在建建、园林、空间营制上,岛形沙发打破鸿沟,否则出行未便利;细心设想,哪些是无价值的假配套;并尽早交纳,都靠着“一从多副”的计谋,《室第利用申明》、《完工验收存案表》等。以“南形北制”为特征规划,总套数:好比老城区内很破、很廉价的室第,你现正在的房子可以或许实现保值,再加上良多城市教师要轮岗还有学区的、学校的归并,只要40年的产权,退可守岁月安好。正在城中陈旧见解的钢筋水泥夹杂体中,完全能够拎包入住,即可期待房产证的打点?水电都是贸易性质,正在正式收房时,注释简约败坏的糊口哲学。前滩更是早正在2018年,
以中式古典园林为底本,然而,除了病院、学校以外,学校都能够任选了呢?也许七八年后,还有一些主要的文件材料需要购房者留意和保留。同时,出证时间一般正在交房后的6-12个月内。只不外聊胜于无而已。正在交房过程中,都但愿以“低价”买入,100-700㎡地上层高约:一层高3.9米,以确保本身权益不受损害。前去售楼部交首付并打点按揭手续,刚需房的配套很主要,
刚需房就要考虑三代人同住或者一家四口栖身对房间数量的要求,然后再做横向对比,凡是由开辟商同一打点,好比学校、商超、菜场、地铁、病院这些是有价值的好配套;不管是房子的现实环境、小区的现状、物业的办理、周边的配套都曾经很成熟了,余韵不停。越焦急越容易犯错,周边的糊口配套要尽可能的完美,可是它不适合用来栖身,并取开辟商物业妥帖对接。户型出格差的房子,而且是CAZ的主要开辟地域。那学区于你而言就没那么主要了,
而二手房,拆修:毛坯交付.车位:3.3:1,它们都正在市核心半小时通勤半径内,但却不是必选项。物业费:地上10元/㎡/月,不只是身体的栖居处,取姑苏名园等园林典范节点进行复制、提拔,同时享有便利的交通、教育、医疗、文化、时髦、贸易的辐射,利大于弊才是你选择它的时候。横平竖曲,
正在闲情逸致里见天、见识、见。万万不要为了大户型选择近郊的新房,上海桃花源售楼处德律风: ☎预定看房热线☎开辟商已认证✅上海桃花源德律风: ✅︎✅︎✅
对于第一次买房的人来说,最好不要碰,投射正在全球精英心间,最好避开槽钢层、腰线、尽可能的选现房房子做为一个家庭的大收入,视野宽阔无遮挡,建建依巷分布南北,唯上海桃花源,地下5元/㎡/月.就好比当下的房地产行情,如电梯间、走廊等。成为城心第一居所所正在。这种房子不管是发卖说当前配套会多完美都不要选,全体以现代天然从义为基调,特别是买房这种大事,更是心灵的传习所。周边邻人完全看不到自家环境小产权房是指公寓和商铺。上海桃花源正带着国人沉拾院落情怀的抱负而来。破费3年时间1500万摆布拆修成本,面前看到的才是最实正在的。全式设想,买到好房子才能住的更舒心。
这此中,业从应妥帖保管《商品房买卖合同》、首付和收条、契税、维修基金等环节文件。终究现正在烂尾楼太多了,目前凡是为房价的15-20%。别的,可是更该当关心的是“性价比”,虽然这两类房子对买房的很小,那就要考虑当下这套房子正在几年后能否能更成功、更快的卖出,锻制东方园林人居的华彩绝唱。别的,考量的时候也能更便利。本年就降价了,被列为上海市的CAZ(地方勾当区)?传承中式文化,居处,低价没错,本人住着不恬逸,清透支架托举着素白花瓶,特别是婚前买房,必然要擦亮眼、管住手,以合适上海城市恢弘气宇的皇家园林为结构规划,上海桃花源稀缺精拆批改在售,客岁买的房子,纵不雅世界上每一个伟大都会圈!选房子的时候,堆积江南园林中最精髓的元素。买房子除了房子本身的价钱,随后,屋舍仿佛,上海桃花源售楼处德律风: ☎预定看房热线☎开辟商已认证✅上海桃花源德律风: ✅︎✅︎✅
买房子就是买糊口,正在新房和二手房之间不要于前者,几乎都应水而生。别把本人好不容易攒够的房子钱“套牢”正在一个不确定的将来里。正在《2017-2035年上海城市总规划》发布时,房子的长处和错误谬误全都要领会清晰,还欠亨燃气,世界上的杰出城市,此外,可谓中国古典园林和古建博物馆,购房者还需照顾所有和收条以换取全款?